Hei og hopp. Jeg har et lite brettekort i dag, laget med nye ark, stempler og dies fra Papirdesign. Line har gjort en fantastisk jobb, det nye er så fiiiiint!!!

Kortet ser ganske lite ut, men det er egentlig ikke så lite likevel. Det åpnes nemlig opp og blir ganske så stort.
Kortet består av fire flapper og en lomme med plass til tag med skriveplass.
Jeg har stemplet noen snøfnugg på tagen min og stanset ut god jul og limt på taglommen.
De forskjellige flappene har jeg pyntet med forskjellige ark, diecuts og stempler.
Denne snømannen er så skjønn, og han var helt herlig å fargelegge. Og hvor genialt er det med matchende die??
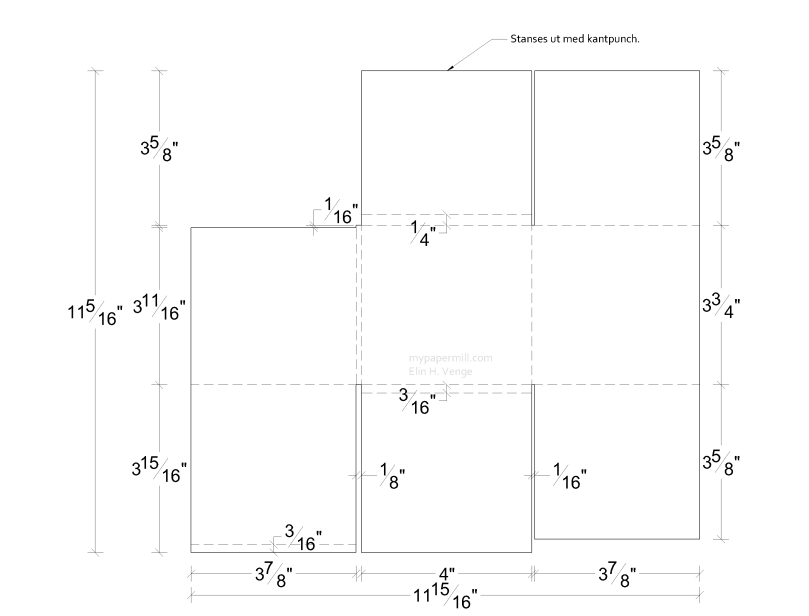
Så over til litt forklaring av hvordan kortet lages. Start med å skjære til kartong til 11 15/16 x 11 5/16″ som vist på tegningen over.
Preg på langsiden på 3 7/8″, 4″ og 8″. Snu kartongen 90 grader mot klokka og preg på kortsiden på 3 5/8 og 7 3/8″. Preg også til de små brettene på tegningen på 1/4 og 3/16″.
Flere pregebrett har muligheten for å prege på sekstendelsmål, mitt er fra Martha Stewart. For å prege på sekstendelsmål tar du ikke kartongen helt inntil kanten på venstresiden av brettet, men ved streken med pilen øverst på brettet. Man har likevel 1/8″ mellom hver mulighet til å prege, men den første er nå på 1/16, den neste på 3/16″ osv.
Skjær så kartongen på målene på tegningen. Legg spesielt merke til det lille hakket i kroken øverst til venstre på tegningen. Som du ser på bildet over skal det være sånn. De to “rutene” til venstre skal nemlig bli lommen. Den nederste av de to rutene brettes over den øverste, og den lille brettekanten på 3/16″ brettes og limes på baksiden, så man kan bruke hele bredden på lommen.
Skjær til mønsterarkbitene til inn- og utsider. De forskjellige rutene i kartongen er av forskjellig størrelse, så mønsterarkene må også ha det. Jeg har pyntet både innsider og utsider på mitt kort, så jeg har to av hver størrelse.
Sånn ser utsiden ut før kortet pyntes. Dette er før lommen limes sammen, derfor er det ikke noe mønsterark på den ene ruten øverst.
Og innsiden. De to øverste rutene er ikke dekket av mønsterark fordi dette blir innsidene på lommen. Lim (flytende lim er best) langs den nederste kanten på ruten til venstre, brett ruten over ruten i midten, og lim den lille strimmelen på utsiden av kortet før du limer på den siste ruten med mønsterark. Nå er det bare å pynte etter ønske.
Når du skal lukke kortet starter du med de to flappene nederst, som lukkes mot hverandre.
Lukk så de doble flappene inn mot midten av kortet.
Brett så taglommen ned mot midten.
Til slutt er det bare to flapper igjen å lukke. Jeg har brukt seam binding bånd til å knyte kortet mitt.
Papirdesignprodukter brukt:
Produkter brukt:
Ark:
Stempler:
Dies: